concerts
activities
Graduation cermonies
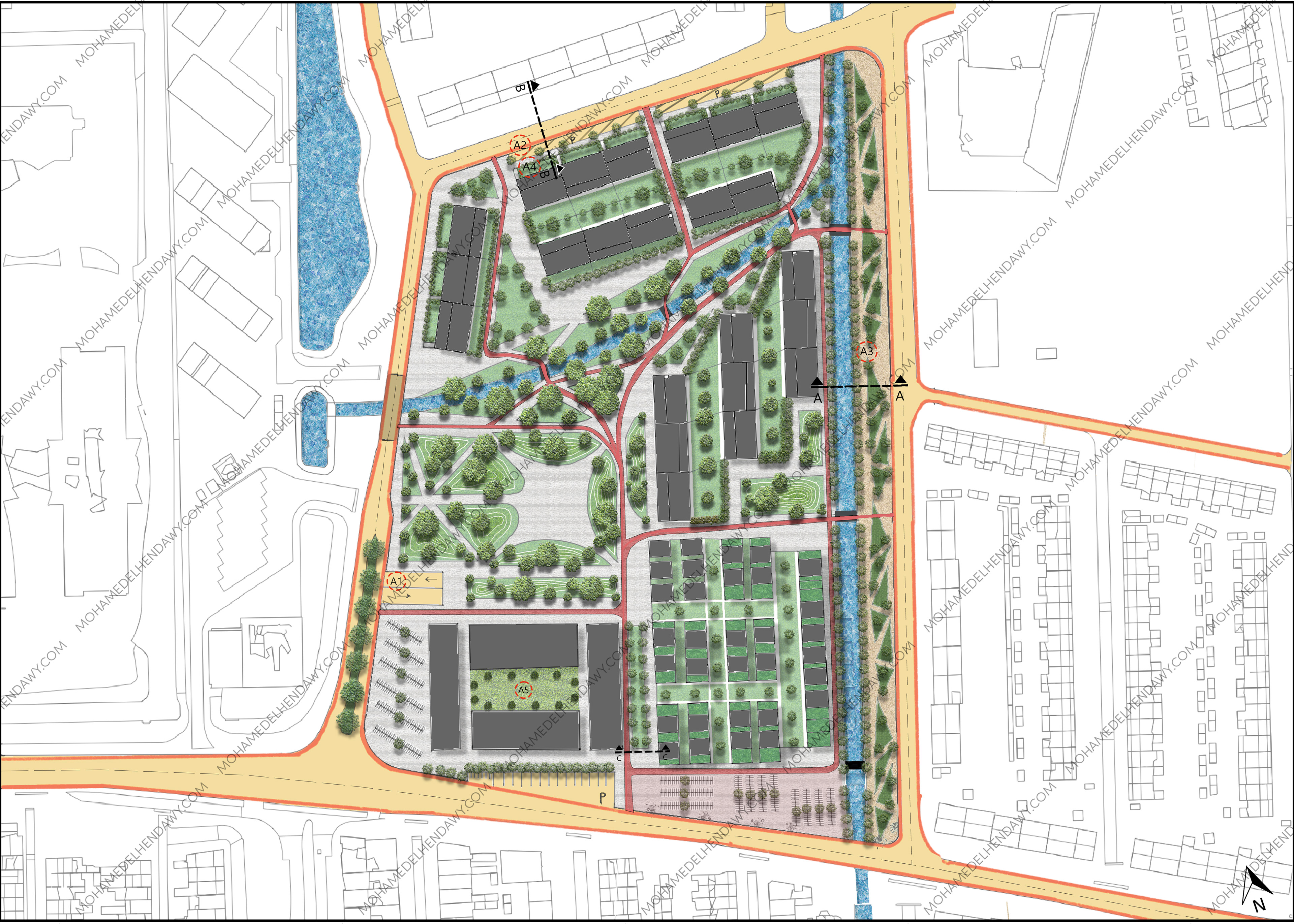
"Towards the Future" is an urban design project centered on the Maria Duystlaan cluster in Delft. The design includes a school and carefully planned building heights to ensure everyone has a clear view of the park. The park itself was designed to accommodate a variety of activities, making it a versatile and engaging space for all users. Additionally, I developed a modular student housing concept, allowing for future expansion by adding new units to the existing structures.